过去,300万置业北京是刚需的标配,现在放眼全北京,无论是新晋楼盘,还是二手房市场,买房的门槛越来越高,截至2018年第一季度,600万内能够买到称心如意的房子举步维艰,也有人退而求其次置业环京,难道首付约140万置业北京,真的是一个梦吗?
严格限购令,北京进入“豪宅年”,能否承担首付成最大问题。
置业资格、限贷限购、高首付门槛,让渴望置业北京的人们苦不堪言,较过去8年,北京刚需置业总价涨幅达400万元之多,迄今根据不完全统计,置业北京普通住宅,套均总价更是高达628万元。

数据来源天朗
刚需置业门槛提高,退而求其次置业二手房,房源不尽如人意,仅能置业一居。
据小编不完全统计,从门头沟、石景山、海淀、丰台等区域统计,首付约150万以内能够选择的二手房源并不多,能够置业二居以上的可能更是少之又少,并且大多数房源“老破小”、无景观园林、物业差、户型、采光不好。

点击查看大图
全北京置业大搜罗,聚焦刚需置业新房最佳选择,房山区域价格最低。
据调查,近期市场热点高层类项目的成交均价,房山区域价格最低,泛六环区域在售项目的产品,63%的户型总价集中在500-900万,折合首付也远远超过预期,达到260万以上。难道真的没有一处安家北京的置业机会吗?

备注:新房市场,首付约150万仅存一个开间产品,作为过渡型存在,置业三居,更是难上加难。

数据来源天朗
京西南,良乡核心腹地,首付约140万置业旭辉城,圆梦北京,三居安家北京。
放眼全北京,80-90㎡的功能性三居产品仅占6%,是当前市场极为稀缺的产品,能够在首付约140万左右购置的三居户型,更是珍稀可贵,旭辉城,恰恰就是这凤毛麟角的三居市场房源中的置业三居首选。

数据来源天朗
【设计团队】
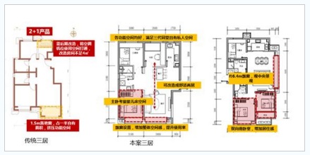
旭辉城力邀清华csc,打破传统倾力打造,89平米功能性3居,充分考量家庭结构和未来人口变化。

[旭辉城三居人性化空间pk传统三居]
[匠心园林]
两环•六景•多空间,满足不同年龄层次人群需求,真正从实用功能、社群社交的角度出发

示意图
[橡胶跑道]
单价8万以下的项目中仅有的设有360米塑胶跑道的项目

示意图
[儿童乐园]
针对性制定孩子游乐区,从认知、安全、儿童社交的维度做考量。0-3无防护能力,启蒙乐园;4-6弱防护能力,早教乐园;7-12岁攻击性强,学童活动区,针对不同年龄有趣味平台,树阵广场,休息廊架,攀爬网等

示意图
【长者空间】
考虑到不同年龄段老人的需求,建立各模块,由静到闹,无障碍坡道,建立社交平台

示意图
结束语:
能够在这座城市拥有自己的一片天地,是一种幸福,能够在这座城将一家老小融进一座三居更是人生一大快事。来旭辉城,置业三居,圆梦北京,给您一个安心留在北京最最踏实的理由。